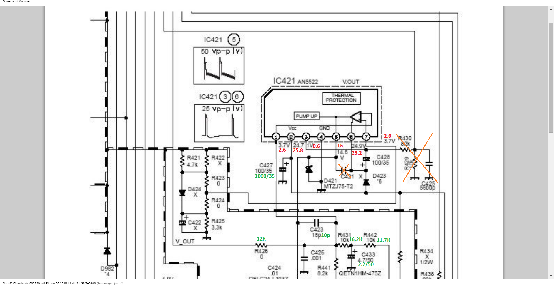
Сегодня снял замеры с кадровой и немного проверил ее обвязку. Сразу скажу что забыл взять схему кадровой на LA7840 а взял только с даташита на AN5522. Как не странно она на~80% совпадает. Разница по схеме небольшая, ну и номиналы другие. Вообщем все замеры номиналы и изменения я написал на схеме.
Единственное что забыл проверить это присутсвие в моей схеме стабилитрона
Что теперь делать?
Вообщем все замеры номиналы и изменения я написал на схеме.
Замеры показывают что кадровая м/сема жива!
"Nawaro7" писал(а):
Что теперь делать?
1. Проверить на КЗ (на ножках) процессора: 9V ( pin: 17; 29 ; 49 ) и 5V ( pin: 9; 36; 55 ) а также наличие этих напряжений на ножках!
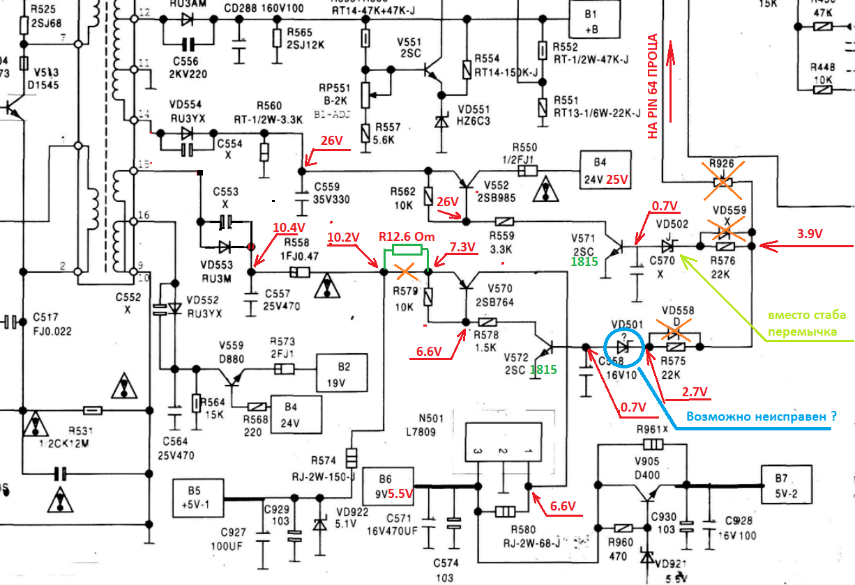
2. Проверить цепь: POWER с ( pin 64 ) процессора до базы транзистора: В892. Перед В892 в этой цепи будет ещё один транзистор - проверь его! Воспользуйся схемой которую дал Фима!
Даташит TMPA8821 для сравнения прилагаю:
Nawaro7, схема которую дал FIMA, подходит или нет?
Вроде бы да, но есть и несостыковки.
Замеры с проца.
9v pin:
17 - 5.5v
29 - 5.5v
49 - 5.5v
5v pin:
9 - 5v
36 - 4.34v
55 - 5v
"s.chasin" писал(а):
2. Проверить цепь: POWER с ( pin 64 ) процессора до базы транзистора: В892. Перед В892 в этой цепи будет ещё один транзистор - проверь его!
Проверка цепи с pin64 до В892 и заодно с pin64 до LM7809 обрисована на схеме.
Все транзисторы исправны.
Смущают меня 10.4v идущие с трансформатора на схему с LM7809, явно их недостаточно для 9v на выходе
Возможно неисправен стабилитрон в цепи LM7809 (падение на нём 2v) завтра проверю. И ещё нашёл несостыковку в своих замерах, после R576 (22k) у меня намеряно 0.7v, хотя в в цепи на LM7809 после такого же резистора (22к) намеряно 2.7v. Возможно я зделал где то ошибку
Да, забыл в схеме написать что B892 это 2SB985.
Смущают меня 10.4v идущие с трансформатора на схему с LM7809, явно их недостаточно для 9v на выходе
Возможно неисправен стабилитрон в цепи LM7809
У тебя неисправность по цепи +9в (большое потребление тока). Нужно смотреть куда эти +9в идут и отключать по очереди нагрузки. У тебя в место 9в 5,5в! Это главная зацепка! Так не должно быть 100%!
У тебя неисправность по цепи +9в (большое потребление тока). Нужно смотреть куда эти +9в идут и отключать по очереди нагрузки. У тебя в место 9в 5,5в! Это главная зацепка! Так не должно быть 100%!
Так фокус в том что на выходе с трансформатора должно быть 13v а не 10.4v! Вспомните как еще вначале при проверке БП указали на заниженое выходящее напряжение с него.Мне кажется что вот этих недостающих 3v и нехватает для образования 9v на выходе с 7809. Может проц управляет БП и увеличивает напряжение на его выходе, к примеру через оптрон? И неисправность в цепи оптрона или в цепи управления которая не выводит проц из ДР? Это так, мои размышления Кстати на контактах светодиода оптрона я намерял 30v.....- я что то не так померял????
Может проц управляет БП и увеличивает напряжение на его выходе
Нет!!!
Блоком питания управляет (если смотреть на схему по которой мы сейчас работаем) транзистор: V551 и цепь его коллектора идущая на оптопару: VD515 РС817В и регулируется переменным резистором: RP 551 2к ! Номинал его может измениться! Нужно проверить в обвязке переменника R557 5,6к - бывает уход в увеличение номинала! Оптопару и транзистор в первичке : V511 В772 заменить новыми т.к. могут звонится нормально , но под нагрузкой текут!
У тебя неисправность по цепи +9в (большое потребление тока). Нужно смотреть куда эти +9в идут и отключать по очереди нагрузки. У тебя в место 9в 5,5в! Это главная зацепка! Так не должно быть 100%!
согласен на 100%!!! Цепь +9V питает тут проц и и В/У на ПК (плата кинескопа)! Насколько мне не изменяет память по этим направлениям в цепи есть перемычки, достаточно поднять ( выпаять ) один конец и цепь будет отключена!
Нахожусь в том прекрасном возрасте,когда тараканы в голове передохли,лапша на ушах не держится,а потенциал ещё,ох как велик...
Так фокус в том что на выходе с трансформатора должно быть 13v а не 10.4v!
Попробуй С557 25Х470мкф заменить (или подкинуть параллельно). Если не поможет, точно, у тебя перегрузка по +9в сажает все напряжения. Блок питания у тебя исправен!
- Вход или регистрация для ответа
 Сегодня снял замеры с кадровой и немного проверил ее обвязку. Сразу скажу что забыл взять схему кадровой на LA7840 а взял только с даташита на AN5522. Как не странно она на~80% совпадает. Разница по схеме небольшая, ну и номиналы другие. Вообщем все замеры номиналы и изменения я написал на схеме.

Единственное что забыл проверить это присутсвие в моей схеме стабилитрона
Что теперь делать?
Прикрепленные файлы:
- Вход или регистрация для ответа
 Замеры показывают что кадровая м/сема жива!
1. Проверить на КЗ (на ножках) процессора: 9V ( pin: 17; 29 ; 49 ) и 5V ( pin: 9; 36; 55 ) а также наличие этих напряжений на ножках!
2. Проверить цепь: POWER с ( pin 64 ) процессора до базы транзистора: В892. Перед В892 в этой цепи будет ещё один транзистор - проверь его! Воспользуйся схемой которую дал Фима!
Даташит TMPA8821 для сравнения прилагаю:
Прикрепленные файлы:
Нахожусь в том прекрасном возрасте,когда тараканы в голове передохли,лапша на ушах не держится,а потенциал ещё,ох как велик...
- Вход или регистрация для ответа
 Nawaro7, схема которую дал FIMA, подходит или нет?
- Вход или регистрация для ответа
 Вроде бы да, но есть и несостыковки.
Замеры с проца.
9v pin:
17 - 5.5v
29 - 5.5v
49 - 5.5v
5v pin:
9 - 5v
36 - 4.34v
55 - 5v
Проверка цепи с pin64 до В892 и заодно с pin64 до LM7809 обрисована на схеме.
Все транзисторы исправны.
Смущают меня 10.4v идущие с трансформатора на схему с LM7809, явно их недостаточно для 9v на выходе
Возможно неисправен стабилитрон в цепи LM7809 (падение на нём 2v) завтра проверю. И ещё нашёл несостыковку в своих замерах, после R576 (22k) у меня намеряно 0.7v, хотя в в цепи на LM7809 после такого же резистора (22к) намеряно 2.7v. Возможно я зделал где то ошибку
Да, забыл в схеме написать что B892 это 2SB985.
Прикрепленные файлы:
- Вход или регистрация для ответа
 У тебя неисправность по цепи +9в (большое потребление тока). Нужно смотреть куда эти +9в идут и отключать по очереди нагрузки. У тебя в место 9в 5,5в! Это главная зацепка! Так не должно быть 100%!
- Вход или регистрация для ответа
 Так фокус в том что на выходе с трансформатора должно быть 13v а не 10.4v! Вспомните как еще вначале при проверке БП указали на заниженое выходящее напряжение с него.Мне кажется что вот этих недостающих 3v и нехватает для образования 9v на выходе с 7809. Может проц управляет БП и увеличивает напряжение на его выходе, к примеру через оптрон? И неисправность в цепи оптрона или в цепи управления которая не выводит проц из ДР? Это так, мои размышления
Кстати на контактах светодиода оптрона я намерял 30v.....- я что то не так померял????
- Вход или регистрация для ответа
 Нет!!!
Блоком питания управляет (если смотреть на схему по которой мы сейчас работаем) транзистор: V551 и цепь его коллектора идущая на оптопару: VD515 РС817В и регулируется переменным резистором: RP 551 2к ! Номинал его может измениться! Нужно проверить в обвязке переменника R557 5,6к - бывает уход в увеличение номинала! Оптопару и транзистор в первичке : V511 В772 заменить новыми т.к. могут звонится нормально , но под нагрузкой текут!
Прикрепленные файлы:
Нахожусь в том прекрасном возрасте,когда тараканы в голове передохли,лапша на ушах не держится,а потенциал ещё,ох как велик...
- Вход или регистрация для ответа
 Обычно переменный резистор: RP 551 2к запечатывают жидким ПВХ чтобы не крутили! Если пломба сорвана, вполне вероятрно что его накрутили!
Нахожусь в том прекрасном возрасте,когда тараканы в голове передохли,лапша на ушах не держится,а потенциал ещё,ох как велик...
- Вход или регистрация для ответа
 согласен на 100%!!! Цепь +9V питает тут проц и и В/У на ПК (плата кинескопа)! Насколько мне не изменяет память по этим направлениям в цепи есть перемычки, достаточно поднять ( выпаять ) один конец и цепь будет отключена!
Нахожусь в том прекрасном возрасте,когда тараканы в голове передохли,лапша на ушах не держится,а потенциал ещё,ох как велик...
- Вход или регистрация для ответа
 Попробуй С557 25Х470мкф заменить (или подкинуть параллельно). Если не поможет, точно, у тебя перегрузка по +9в сажает все напряжения. Блок питания у тебя исправен!
Страницы