Здравствуйте.Телевизионный приёмник переходной между 3-5УСЦТ,проблема в том,что при переключении программ проходит от 3 до 7 минут прежде чем появиться картинка,когда же появиться -показывает хорошо,без помех,тянучек,муара и пр.На АРУ 7,5в,напряжения диапазонов изменяются,напряжение настройки изменяется,каналы практически ловит все и в МВ и в ДМВ,но вот между переключениями каналов время до 7мин,в это время слышно вч верещание стр.развертки,а на растре то,что ниже.БУ-электронный.Может это типовуха?Я не сталкивался.
Непропаи пропаяны.
27/10/2011 - 18:27
- Вход или регистрация для ответа
3-5УСЦТ.Затяжная синхронизация при переключении.

- Вход или регистрация для ответа
 eshelon, ну так обслугу ХА2 проверь (литы) и подстроечниками поиграйся. Напруги с БП озвучь, там литы проверь
Гадания и предсказания решений по бобам, желудям, дыму, кофейной гуще...
Продажа товаров для ремонта LED подсветки, инструменты, материалы, радиодетали
- Вход или регистрация для ответа
 Там литов,вагон и маленькая тележка,все заменить ресурсов не хватит.БП конечно проверю,но он же показывает и не плохо.
- Вход или регистрация для ответа
 eshelon, это там блочёк такой, 4-е крутки сверху?
Будем ремонтировать или пусть работает?
"Человеку нельзя помочь помимо его воли." Г. Померанц
- Вход или регистрация для ответа
 НА ИП 105в 14.7в 13,7в 22,2в почти как на схеме-в не синхронизации.
Минздрав можно подробней про блочёк и 4 крутки сверху
- Вход или регистрация для ответа
 Видимо эксклюзивный тв, даже не имеет модели(собирался для членов политбюро).
Взял паяльник, для чайников и прошелся по тв трактором.
- Вход или регистрация для ответа
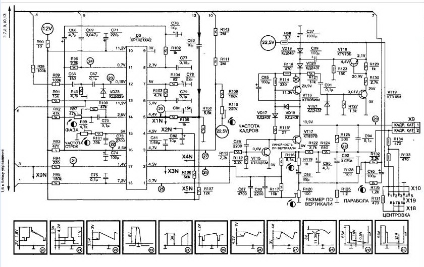
 AleksNew Он меня тоже поначалу с толку сбил, как всегда недооформив тему. Схема у него в первом посту, вложение.
Кондёров ему видите ли там много! А скорее всего именно в них и гвоздь! Тем более что возраст у ящичка немалый.
Начинаем с ИП и далее..
Страждущего можно накормить рыбой, а можно дать удочку... продаст, колбаски купит!
- Вход или регистрация для ответа
 eshelon, значит, всё предыдущее в твою сторону было написано не просто так, и ты не в обиде на правду. :-)
Шоб не поднять 3усцытытэ...
Про переходные модели хоть не сзвизди! На каждоб блоке подписано. УэсЭр есть?
А про
... так может ты расскажешь конкретнее про бренд, 3-5усцытытэ и где там 105.
- Вход или регистрация для ответа
 Нет-нет,всё правда,СМРК21, уср и кадровая в одном флаконе кр1021ха21+транзисторы,105в -рабочий,126в-дР в схеме это всё есть.
Название Banga 37ТЦ-402Д-4,из Украины.
- Вход или регистрация для ответа
 Затяжная синхронизация...!!! Блин! Про затяжные прыжки с парашютом слыхал.. мож ещё беременность затяжная?
Вернись к оформлению и не смеши народ! :-)
1.2.3.Схема синхронизации. Что так трудно? Только там вроде шесть круток.
Страждущего можно накормить рыбой, а можно дать удочку... продаст, колбаски купит!
- Вход или регистрация для ответа
 Копай(пропай) :-) в этом районе,а лучше наверно выкинуть. :hi_hi_hi:
Прикрепленные файлы:
Страницы